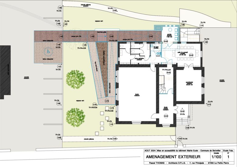
Le projet consiste en la mise en conformité PMR avec la création d’une rampe d’accès au bâtiment école-mairie, ainsi que l’aménagement d’un sas d’entrée pour l’accès mairie.
Lorem ipsum dolor sit amet, consectetur adipiscing elit. Ut elit tellus, luctus nec ullamcorper mattis, pulvinar dapibus leo.
Partager :